Inhalte

02. Das SchlauBau-Konzept

3. Flächenoptimierte, modulare Planung

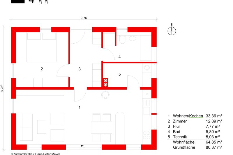
Bei der Ausgestaltung der Räume hat unser Architekt Hans-Peter Meyer von Vitalarchitektur Meyer die Räume auf Minimalgröße geplant, so dass sie auf jeden Fall noch funktionieren, ohne unnötig Platz zu «verschwenden». Größer geht sowieso immer, aber wir wollen ja so klein wie möglich und so groß wie nötig bauen. Das bedeutet beispielsweise, dass in einem Elternschlafzimmer Platz für ein 2 m breites Bett und jeweils 75 cm links und rechts für einen Nachttisch und als Gehfläche zur Verfügung stehen. Daraus ergibt sich, dass ein «universelles» Elternschlafzimmer mindestens 3,50 m breit sein sollte. In der Tiefe sollte es ein 2 m langes Bett, einen 60 cm tiefen Schrank und mindestens 100 cm Gehbreite zwischen Bett und Schrank bieten, also mindestens 3,60 m tief sein, was einer Mindestfläche von 12,6 m² entspricht.
 
Aus der Anordnung eines oder mehrerer Schlafzimmer auf der einen Hausseite ergibt sich zusammen mit dem Bad oder den Bädern, gegebenenfalls dem Eingang und einem Technikraum die Gesamtlänge des Hauses. Diese wird auf der gegenüberliegenden Seite der Mittelachse gespiegelt. Dort finden auf der gleichen Fläche Küche, Ess- und Wohnzimmer und ggf. ein weiteres Schlaf- oder Kinderzimmer ihren Platz.
 
Da das Haus symmetrisch ist, kann der Grundriss über beide Mittelachsen gespiegelt werden. Die Räume können aber auch rund um die Achsen rollierend angeordnet und so dem jeweiligen Grundstück, dem Sonneneinfall und der Erschließungssituation angepasst werden.
 
Die Breite der Häuser ist immer gleich. Die Länge ergibt sich aus der jeweiligen Anzahl der Schlaf- und Kinderzimmer und des Bads bzw. der Bäder. Wer es schafft, sich von diesen Plänen zur Flächenreduktion inspirieren zu lassen, und dadurch 10, 20 oder mehr Prozent Wohnfläche einspart, der spart auch 10, 20 oder mehr Prozent Gebäudekosten ein. Und dabei muss er noch gar nichts selbst machen.
 
Mehr Details zu den Plänen und den einzelnen Haustypen mit ihren Varianten werden im Kapitel 5, «Planung der Schlau- Bau-Häuser», behandelt.
 
Die Pläne für die Häuser können bei Vitalarchitektur Meyer für jeweils nur 498 Euro zuzüglich der im jeweiligen Land geltenden Umsatzsteuer erworben und bei Bedarf angepasst werden. Damit kommt jeder SchlauBauer für kleines Geld zu einem großartigen Plan für ein günstiges Haus. Die Pläne kommen im DXF/DWG-Format und können von jedem Planer oder Architekten beliebig bearbeitet werden. Damit sparen sich die Bauherrschaften eine aufwendige Individualplanung und wir helfen ihnen, gleich mal einen dicken Batzen Geld zu sparen. 

Kontakt zu unserem Architekten Hans-Peter Meyer in Weitnau: hpmeyer@vitalarchitektur.com
 

Haus 4-2 (for two) mit einem Schlafzimmer

Haus 4-3 (for three) mit zwei (Schlaf)Zimmern

Haus 4-4 (for four) mit drei (Schlaf)Zimmern


Sparvorschlag für SchlauBauer

Entwurfspläne für House 42, 43, 44 und «Haus Dolde» für faire: € 498,-
 


VitalArchitektur

Hans-Peter Meyer

Rechtis - Jakobsweg 2
87480 Weitnau-Allgäu
T +49 (0) 8378 - 932 90 88
F +49 (0) 8378 - 932 236
info@vitalarchitektur.com
www.vitalarchitektur.com