Inhalte

05. Planung der SchlauBau-Häuser

House for two (42)

House 42 ist, wie der Name schon sagt, für bis zu zwei Bewohner gedacht, die sich ein Schlafzimmer, ein Bad und einen relativ großzügigen Koch-, Ess- und Wohnbereich teilen. Natürlich funktioniert das Layout erst recht für Singles.
 
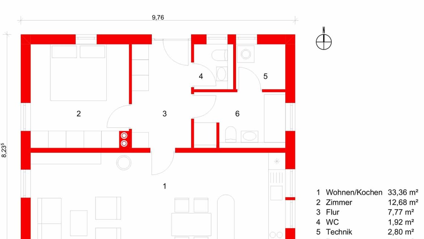
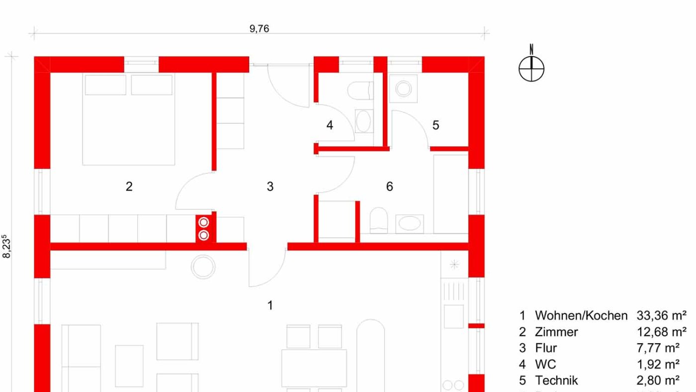
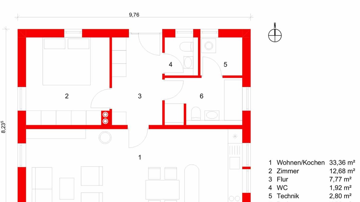
Variante A
Gebäudefläche: 80,37 m²
Wohnfläche: 64,85 m²
 
 
Erläuterung im Uhrzeigersinn oben links beginnend:
• Nordwest: Schlafzimmer im Nordwesten, in dem ein 2 × 2 m breites Bett möglich ist
• Nord: Eingangsbereich mit Diele/Vorraum und Garderobe und Zugang zum Schlafzimmer, zum Bad und zum Wohnraum
• Der Zugang zum Technik- und Waschraum könnte ebenfalls von der Diele aus erfolgen, wurde in diesem Plan aber von der Küche aus gewählt, weil der Technikraum auch gleichzeitig als Abstell- und Vorratsraum funktionieren kann.
• Nordost: Bad mit Dusche, WC, Waschbecken und Badewanne
• Ost: Technikraum mit Waschmaschine/Trockner und ggf. Abstellraum/Vorratsraum
• Südost: Küchenzeile mit Theke zum Esszimmer, in der weitere Küchenunterschränke untergebracht sein können
• Süd: Essplatz
• Südwest: Wohnzimmer
 

 

House 42, Variante A

House 42, Variante A + Gäste-WC

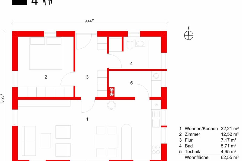
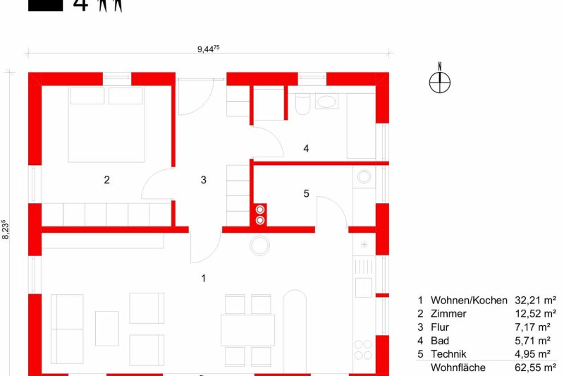
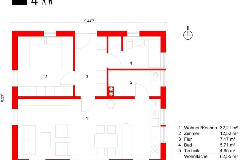
Variante B
Identisch mit Variante A, aber Hauslänge um ½ Rastermaß kleiner, deshalb sind alle Räume unwesentlich kleiner.

Gebäudefläche: 77,80 m2
Wohnfläche: 62,55 m2