Inhalte

05. Planung der SchlauBau-Häuser

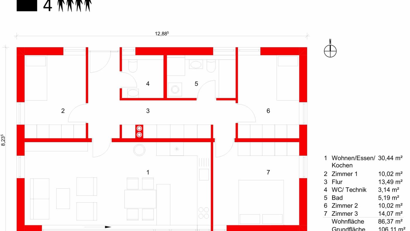
House for four (44)

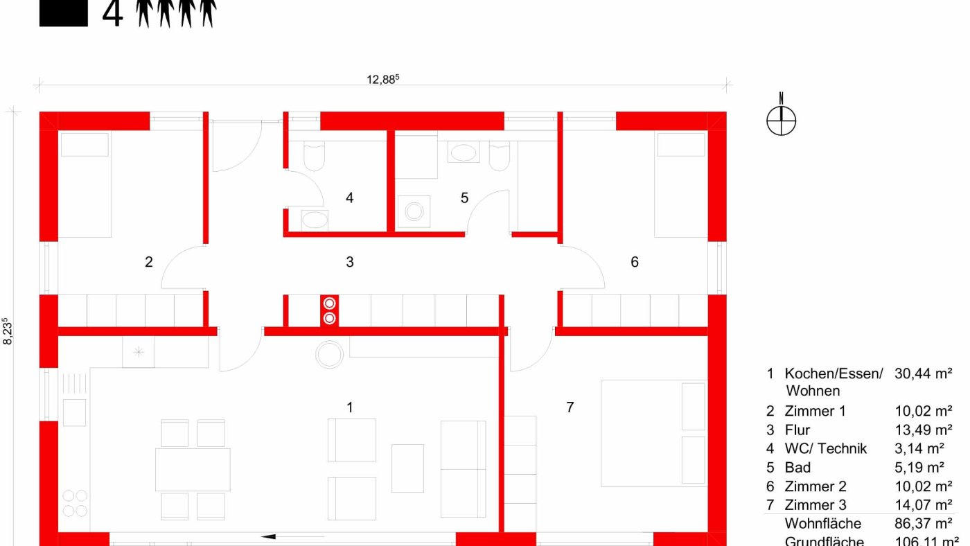
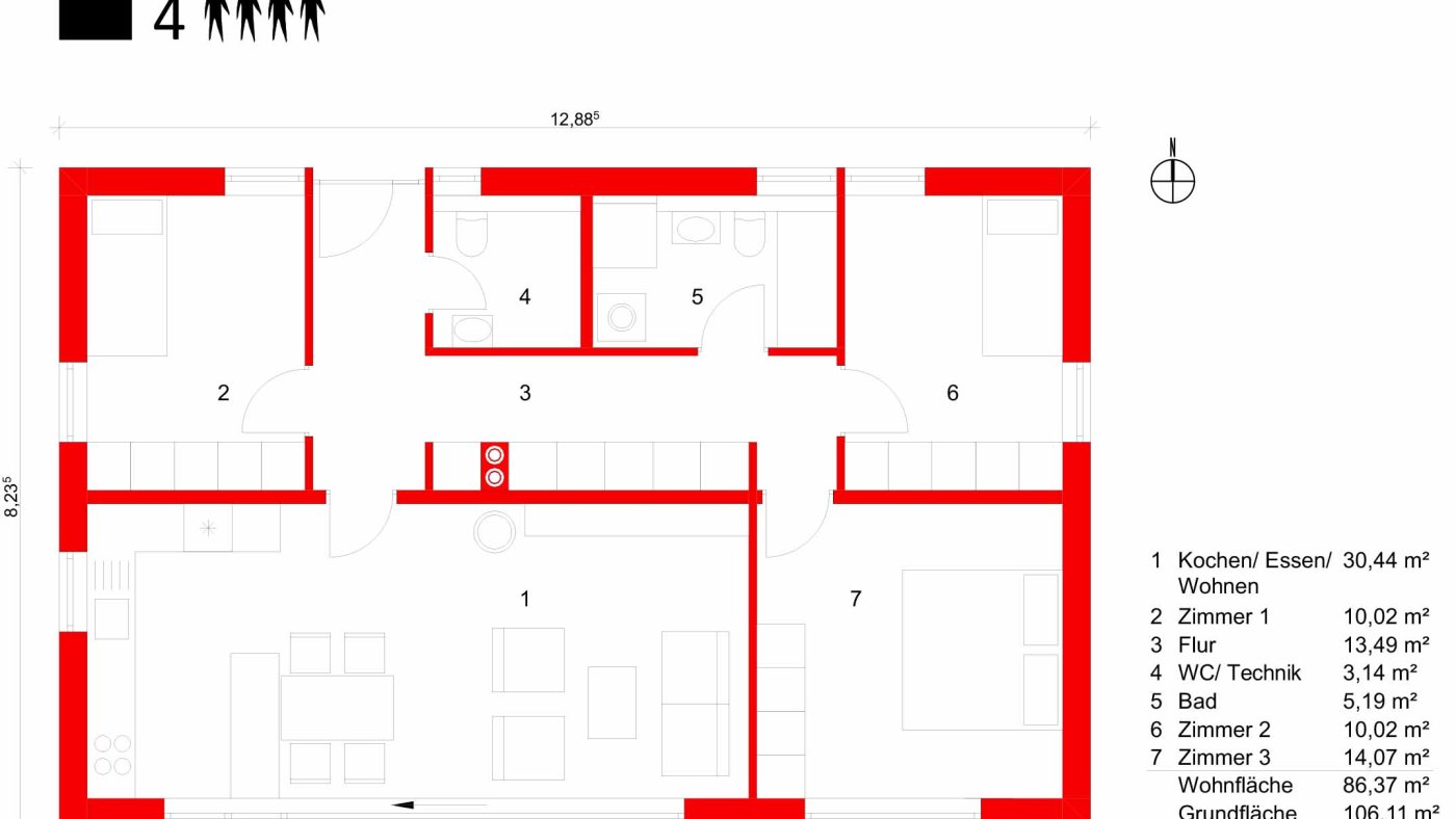
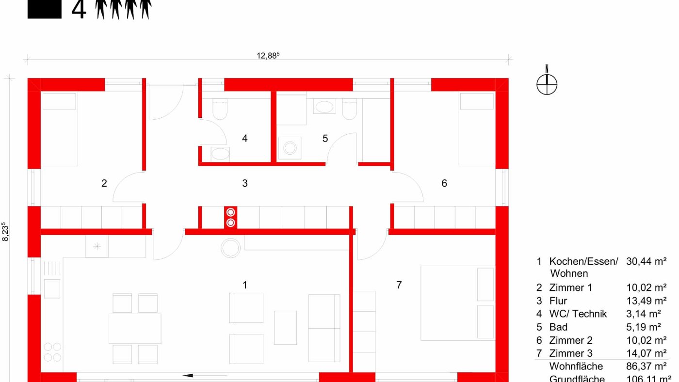
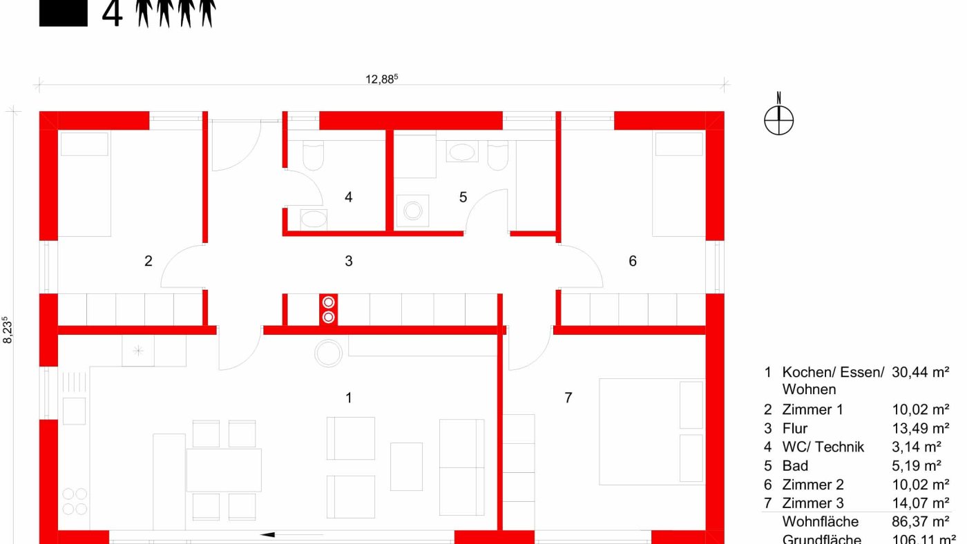
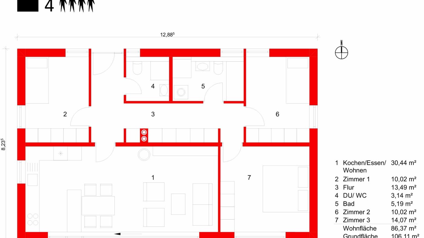
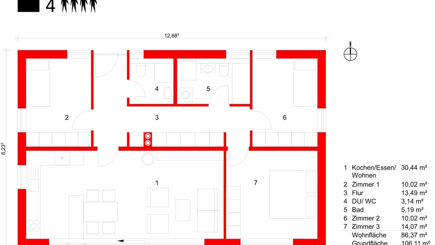
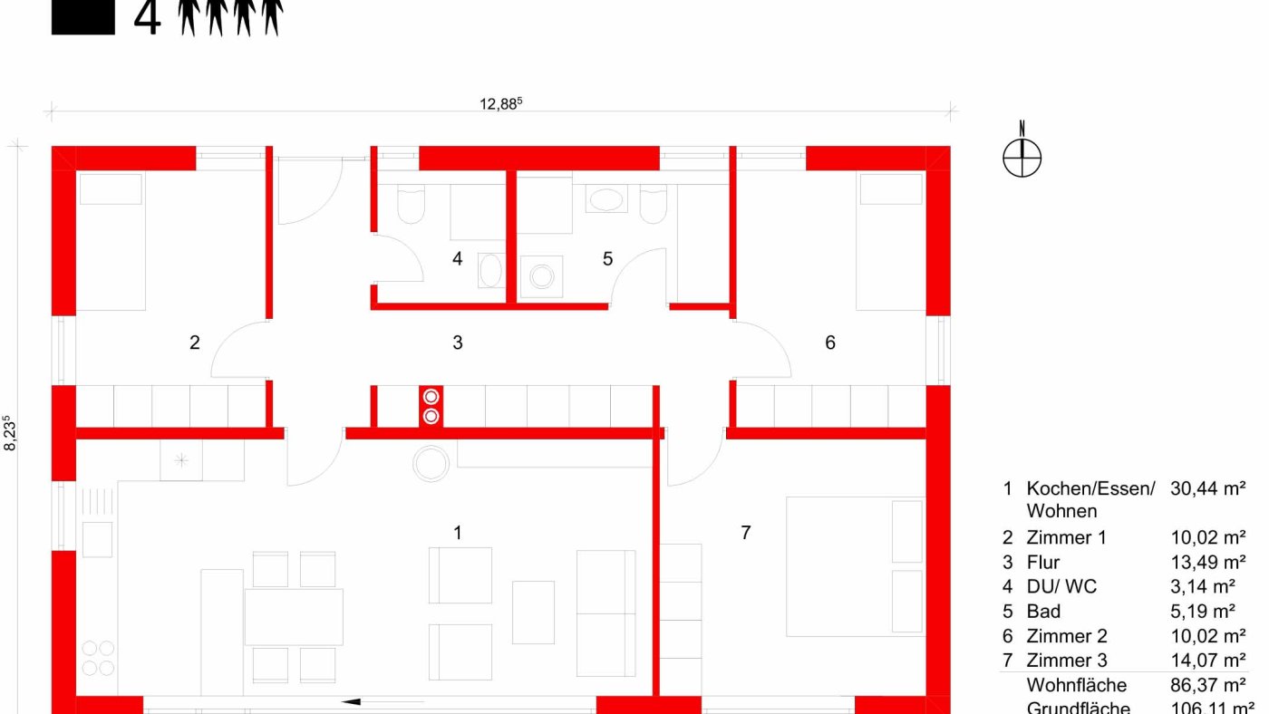
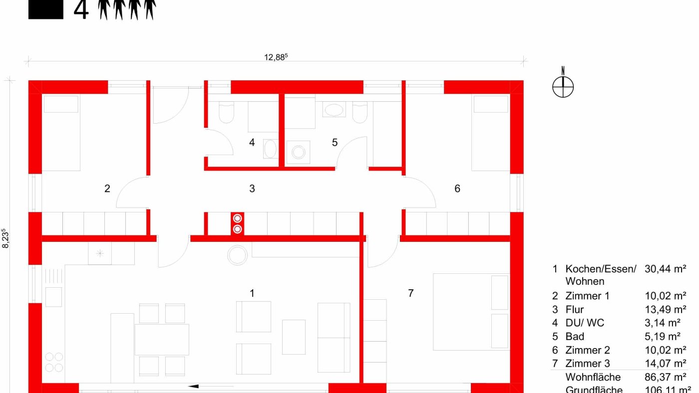
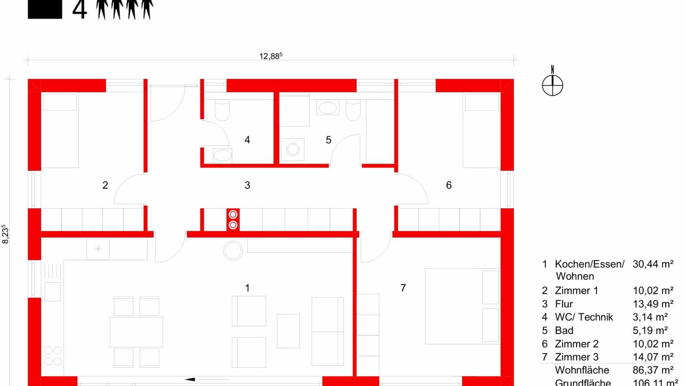
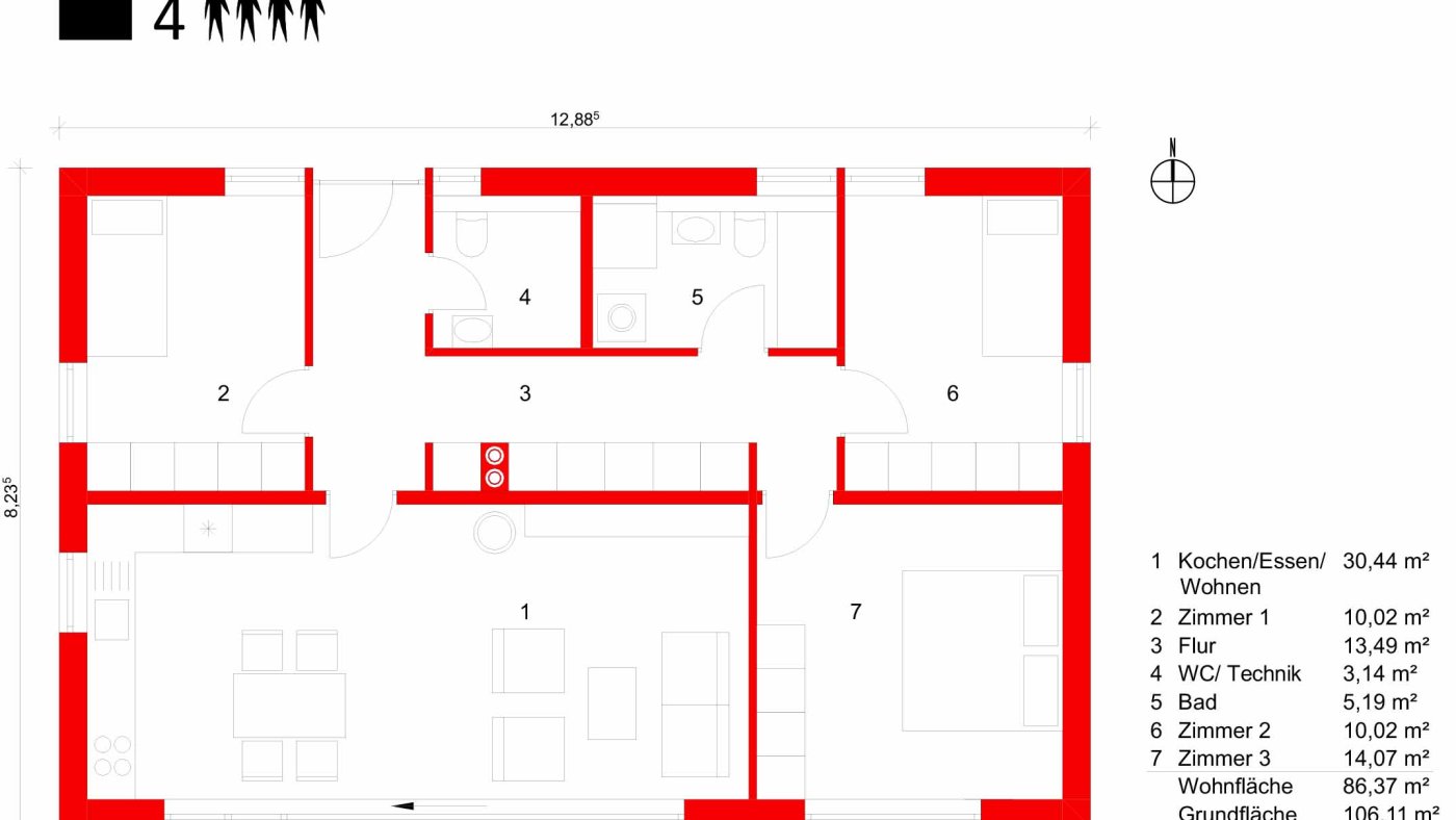
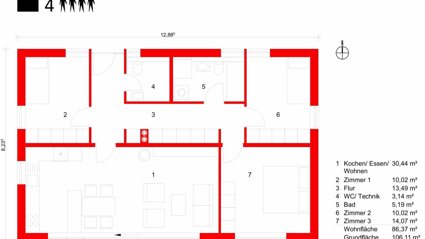
House 44 verfügt über drei Räume, die von einer Familie mit zwei Kindern als Schlafzimmer genutzt werden können. Natürlich bieten sich, wie oben beschrieben, auch andere Funktionen an. Aufgrund der Tatsache, dass es auch in diesen Plänen zwei Bäder gibt, bietet dieser Plan in der Variante E auch die Option einer mehr oder weniger abgeschlossenen Einheit für eine Pflegekraft oder ein erwachsenes Kind.

Erläuterung im Uhrzeigersinn oben links beginnend:
• Nordwest: Kinderzimmer 1 oder Gästezimmer, Arbeitsraum oder Hauswirtschaftsraum
• Nord: Eingang mit Diele/Vorraum, Gäste-WC mit Waschbecken und Technikraum, Hauptbad mit Dusche, Waschbecken, WC, Badewanne und Platz für Waschmaschine/Trockner
• Nordost: Kinderzimmer 2
• Südost: Elternschlafzimmer mit 2 m breitem Bett möglich
• Süd: Küche mit Kochinsel und Essplatz
• Südwest: Wohnzimmer
 

Gebäudefläche: 106,11 m2
Wohnfläche: 86,37 m2

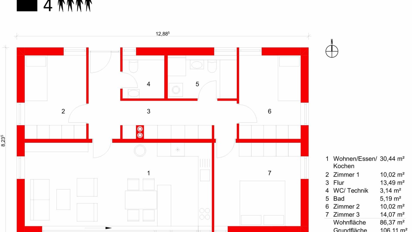
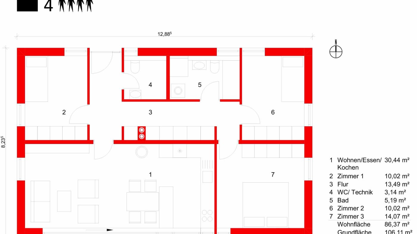
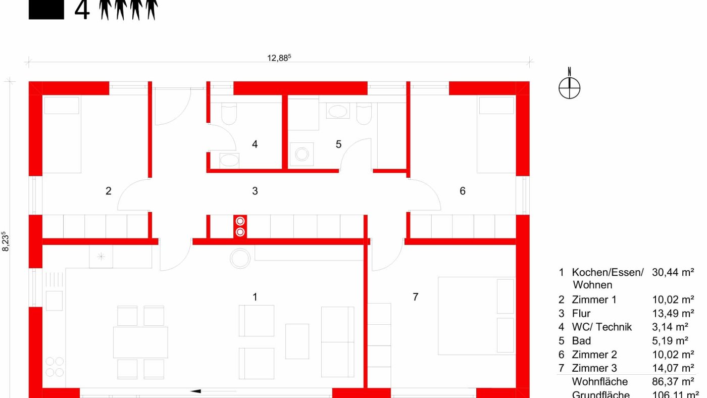
Variante B
Wie Variante A, jedoch Schlafzimmer um 90° gedreht

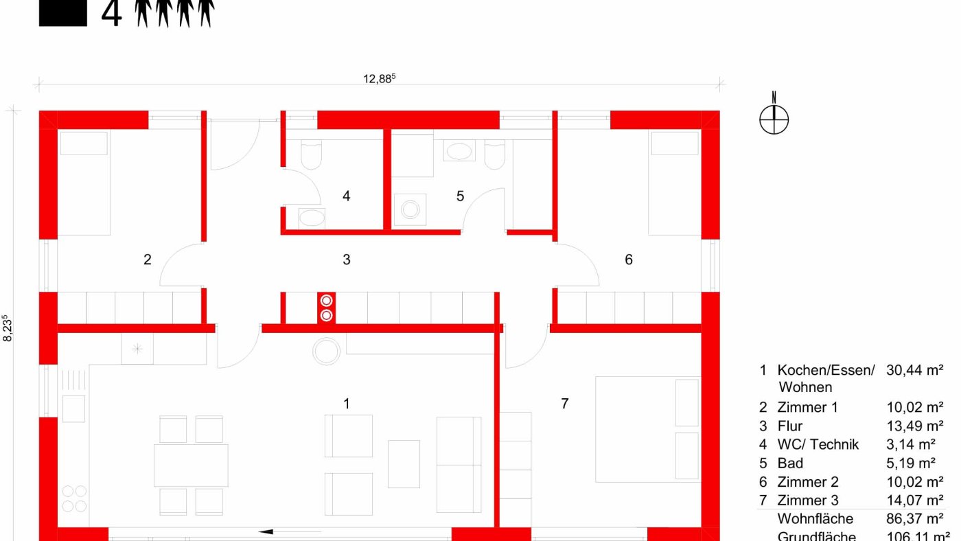
Variante C
Wie Variante A und B, jedoch Küche mit Kochinsel auf der Westseite platziert

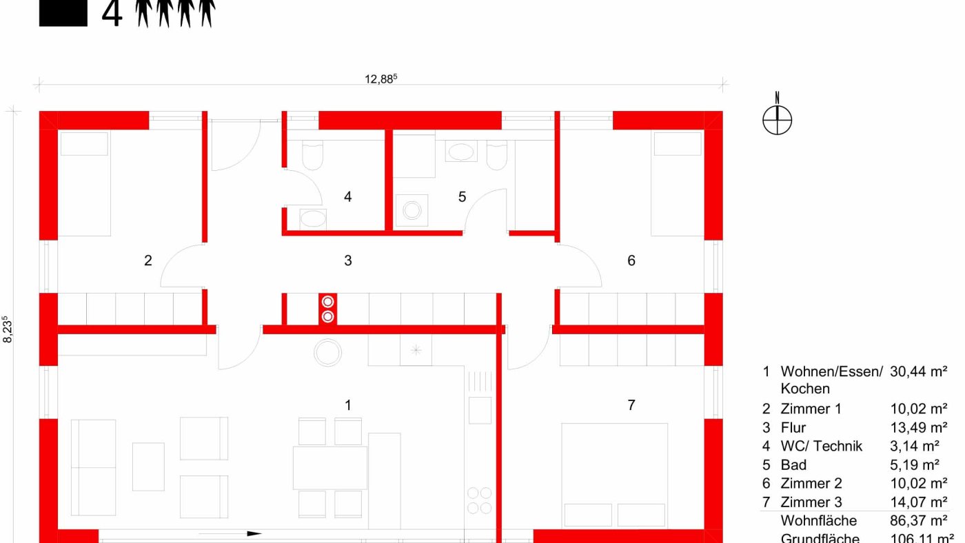
Variante D
Wie Variante A, B und C, jedoch Küche ohne Kochinsel als L-Form auf der Westseite platziert

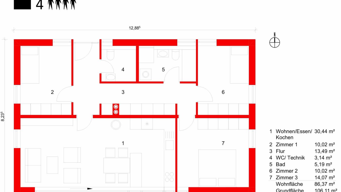
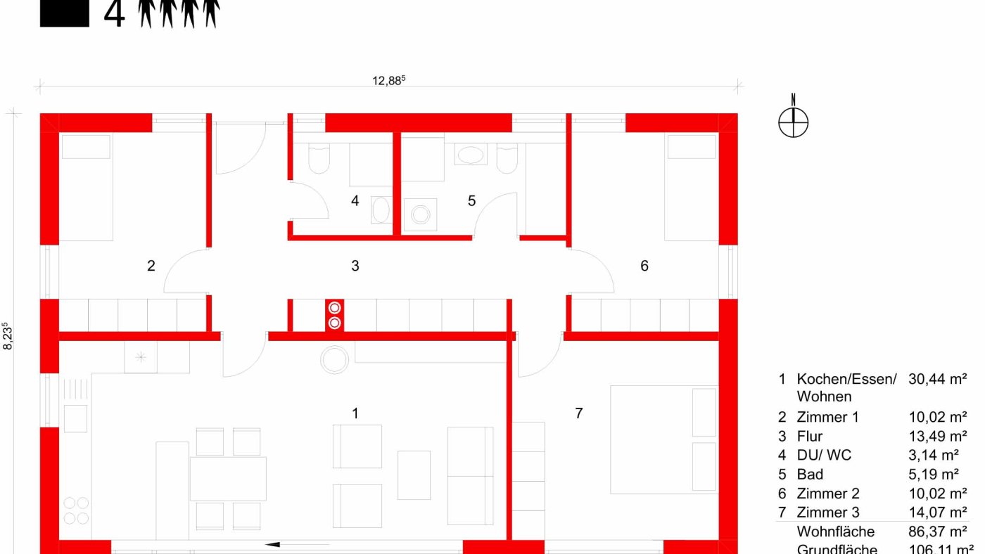
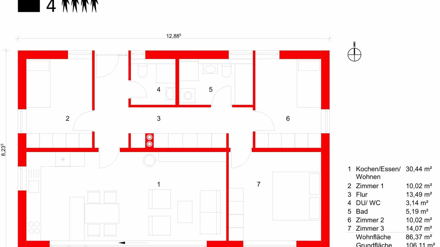
Variante E
Wie die vorhergehenden Varianten, jedoch statt der Technik ein Dusch- bad im Gäste-WC. Die Technik müsste in diesem Fall auf dem Dachbo- den oder im Wandschrank in der Diele installiert werden.

Nordwest: Kinderzimmer 1 oder Gästezimmer, Arbeitsraum oder Schlafzimmer für eine Pflegekraft mit Duschbad nebenan.